Good Food

The Good Food Project is an academic project completed at UC Berkeley that conceptualizes a building that is programmatically centered around food production and consumption in San Francisco. The program includes four main spaces: the urban market hall, the event/ gallery space, the urban farm, and the commissary kitchens.

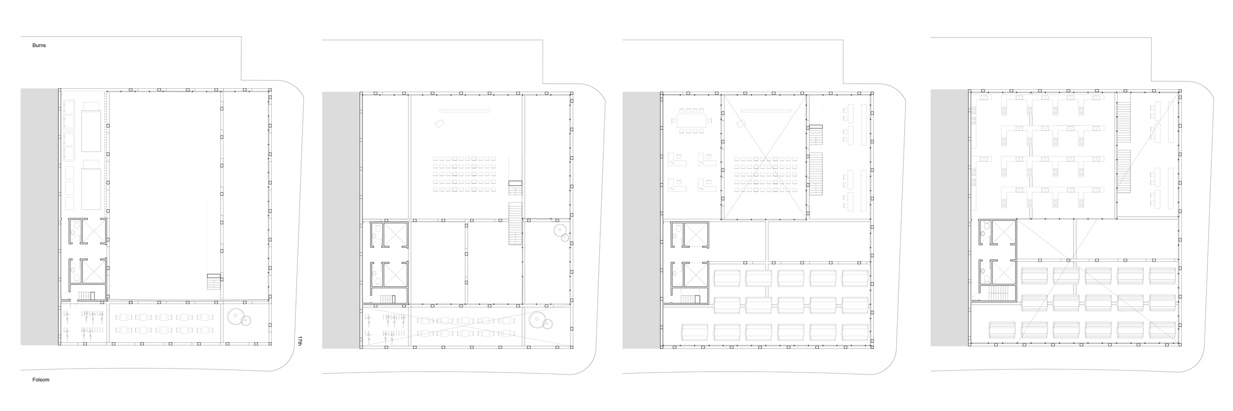
The program is divided into two primary categories: food production (test labs, research labs, and commissary kitchens) and food consumption (market hall, auditorium, and gallery). This distinction establishes a clear spatial hierarchy within the building. Public spaces are accessible and open, while production areas remain private yet visually connected, allowing visitors to observe the processes behind food without directly entering them. The project emphasizes transparency and the relationship between making and consuming.

The structural system drives the architectural concept. A modified diagrid column system organizes the building, with columns in opposing directions separated to create interstitial spaces. These structural voids become the framework for program distribution, circulation, and thresholds. Rather than serving as a secondary system, structure becomes spatial and experiential.

Plans

Sections

Previous
Previous

Single Family Home

Next
Next

Refugee Community Center